Рекуператор Mitsubishi Electric Lossnay VL-100EU5-E Wi-Fi

149188
Зв'яжіться з нами за ціною
В наявності
Доставка
Варіанти оплати
Наші переваги
  • — Супровід гарантійних випадків
  • — Монтаж виробляють наші спеціалісти
  • — Повернення та обмін
  • — Різні способи оплати
  • — Найкраща ціна

Організація оптимального мікроклімату в першу чергу залежить від якості та ефективності циркуляції повітря в приміщенні, яка здійснюється природною або примусовою вентиляцією. Одним з можливих рішень проблеми є припливно-витяжні системи з рекуперацією тепла, які в холодну пору року нагрівають і зволожують повітря, що подається в приміщення вихідними повітряними масами, а влітку навпаки, частково охолоджують і осушують.

Технічні особливості та переваги Mitsubishi Electric Lossnay VL-100EU5-E Wi-Fi

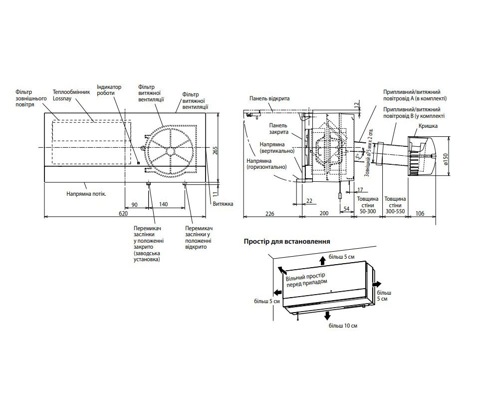
Mitsubishi Electric Lossnay VL-100EU5-E Wi-Fi – це високопотужний прилад настінного типу з перехресною циркуляцією повітря, який підключається до мережі з напругою 220 В і має дві швидкості вентилятора, що настроюються – висока (розрахована на витрату повітря 100 м3/год) і низька (55 м3/год). Його конструкція поміщена в компактний і зносостійкий корпус і складається з целюлозного теплообмінника Lossnay, фільтра зовнішнього повітря і витяжної вентиляції, відцентрового вентилятора потужністю 26 Вт зі спеціальною захисною сіткою, шторки для горизонтального або вертикального напрямку припливного повітря, клем для підключення зовнішнього вимикача і ручного перемикача заслінок зовнішнього повітря.

Керування здійснюється за допомогою настінного проводового пульта, яким можна включати або вимикати установку і вибирати швидкість роботи вентилятора.

Для установки рекуператора необхідно два отвори в стіні діаметром від 85 до 90 мм, виконаних під ухилом 5 градусів, в які встановлюються повітроводи, що мають на кінці спеціальні кришки, які не дозволяють дощовій воді накопичуватися всередині. Для запобігання пошкодження теплообмінника не рекомендується використовувати установку при температурі зовнішнього повітря нижче 10 градусів Цельсія.

У комплект поставки Lossnay VL-100EU5-E Wi-Fi входять:

  • сам пристрій;
  • монтажна пластина;
  • з'єднувальні пластикові повітроводи;
  • зовнішні декоративні ковпаки;
  • набір кріплень;
  • диск та інструкція з монтажу та експлуатації.

Ціна Mitsubishi Electric Lossnay VL-100EU5-E Wi-Fi включає в себе наступні переваги моделі:

  1. Має інноваційний теплообмінник, який зберігає баланс вологи в приміщенні.
  2. Має низький рівень шуму при роботі, особливо на низькій швидкості роботи вентилятора.
  3. Виключає появу протягів в приміщенні.
  4. Ефективно очищає припливне повітря від пилу, пилку і спор рослин.
  5. Допомагає запобігти появі грибків і цвілі в приміщенні.
  6. Зручний і легкий в установці та експлуатації.
  7. Висока якість.

Сфера застосування Mitsubishi Electric Lossnay VL-100EU5-E Wi-Fi

Купити Mitsubishi Electric Lossnay VL-100EU5-E Wi-Fi можна як для установки в будинках і квартирах, так і в офісних, адміністративних та комерційних приміщеннях, де необхідно забезпечити ефективну і економічну циркуляцію повітря.

Щоб дізнатися думки про Mitsubishi Electric Lossnay VL-100EU5-E Wi-Fi - телефонуйте, звертайтеся онлайн або приходьте в наші магазини. Залишайте відгуки про використання приладу на сайті.

Основні характеристики
Виробництво
Японія
Витрата повітря в режимі рекуперації
55, 100 м³/год
Датчики і індикатори
індикатор роботи
Ефективність рекуперації тепла
73, 80 %
Кількість швидкостей
2 шт.
Керування
wi-fi управління, перемикання швидкостей
Клас фільтра
F7 (опція),G3
Комплектація
інструкція з експлуатації
Мінімальна температура
-10 °C
Максимальна температура
40 °C
Матеріал теплообмінника
целюлоза
Монтаж
настінний
Монтаж зовнішньої решітки
з вулиці
Оснащення і функції
ЄС вентилятор,повітряний фільтр
Отвір під монтаж
110 мм
Площа
11-20 м², 21-35 м²
Рівень шуму на відстані 3м
24, 36.50 дБ
Режим роботи
приплив і витяжка, рекуперація тепла,рекуперація холоду
Споживана потужність
13, 30 Вт
Схема потоку повітря
перехресний
Тип
рекуператор
Тип приводу внутрішньої заслінки
ручна заслінка
Шум від рекуператора
стандартний (від 16 до 30 Дб)
Фізичні характеристики
Вага
7.50 кг
Висота
265 мм
Глибина
200 мм
Діаметр стінового модуля
90 мм
Колір
білий
Товщина стіни від
50 мм
Ширина
620 мм
Гарантія
Гарантія
36 міс.
Знайти схожі

No reviews found

Можливо, вас це зацікавить
  • Лідери продажів
  • Найпопулярніші
Швидко та якісно доставляємо

Наша компанія здійснює доставку по всій території України

Гарантія якісного монтажу та сервісне обслуговування

Ми пропонуємо лише ті товари, в яких ми впевнені

Постгарантійне обслуговування

У наявності на складі всі витратні матеріали